Vitogo Parade, Lautoka +679 721 0657 Mon-Sat: 8am - 5pm
Follow us:
Autora
  • HOME
  • ABOUT US
    • ABOUT DESIGN
    • ABOUT BUILT
    • DIRECTOR
    • ASSISTANT DIRECTOR
  • OUR TEAM
    • MANAGEMENT TEAM
    • OPERATIONAL TEAM
    • OUR EVENTS
  • SERVICES
    • GRACE DESIGN
    • GRACE BUILT
  • GRACE PROJECTS
    • GRACE PLAN LAYOUT
    • GRACE DESIGN
    • GRACE BUILT & DESIGN
    • LANDSCAPING
  • CONTACT
Home | Projects | Project Single

Project Name

RESIDENTIAL VILLA

  • Client Residential Villa
  • Sale by January 2026
  • Project Designer GRACE DESIGN
  • Call for a Budget +679 7210657

BROCHURES

Brochures.PDF
Brochures.DOC
Image
Image
Image
Image
Image
Image
Image
Image
Image
Image
Image
Image
Image
Image
Image
Image
Image
PROJECT DESCRIPTION

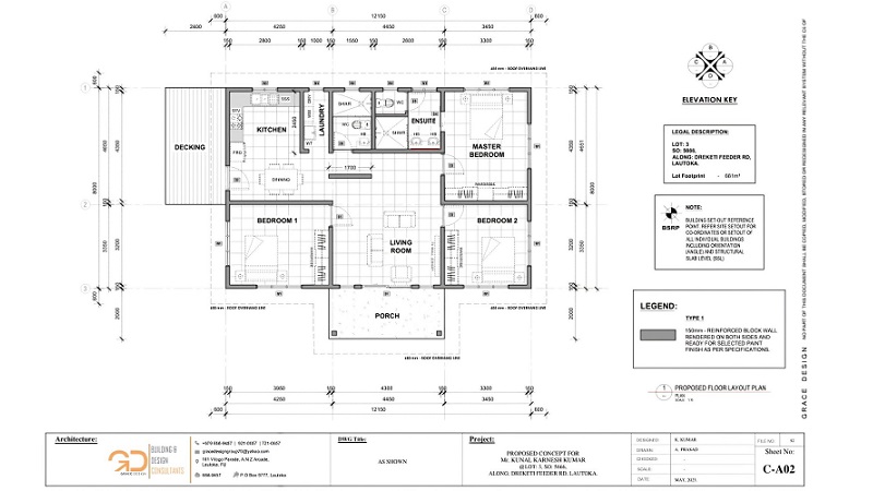
Our Next Residential Villa : In House Project.
FOR SALE

Our 16th Residential Villa Designed and to be Built by our very own GRACE BUILT &Design Fiji Ltd will be up for Grab by January 2026.
Sitting on a 660sqm Crown Land along Dreketi road Saweni Lautoka.This beautiful,reasonably sized 3 bedroom Residential Villa is currently under design stage ,construction should start in August..this will be up for sale by January 2026..ideal for first home buyers with lot of room for future extension..Design by us we have kept in mind to allow space for future extension and landscape..Located just outside Lautoka in a sub urban area yet close to Uni fiji and schools as well as Superfoods Saweni this will be a good one for those who love Nadi Lautoka Corridoor..
We will keep our Client and followers posted when its ready..Previously we had sold our in house projects to known Clients,however this time we would give opportunity to any one who has a dream to own their own place with mordern aesthetics in a Reasonable Price.

RELATED PROJECTS

Image
OUR BUILDING DESIGN
VIEW MORE
Image
OUR BUILDING DESIGN
VIEW MORE
Image
OUR BUILDING DESIGN
VIEW MORE
Image
OUR BUILDING DESIGN
VIEW MORE
Image
OUR BUILDING DESIGN
VIEW MORE
Image
OUR BUILDING DESIGN
VIEW MORE

Image

Grace Design & Build is your trusted partner for bringing your dream project to life in Fiji.

  • Vitogo Parade, Lautoka, Fiji
  • CALL US : (+679) 721 0657
  • gracedesigngroup70@yahoo.com

OUR PROJECTS

  • Image

    GRACE DESIGN

    Turning visions into architectural reality.
  • Image

    GRACE BUILT & DESIGN

    Building with quality, precision, and trust.

TAGS

Building Smart House Costruction Villa Residential Interior Resort Commercial

INSTAGRAM PHOTOS

Image
Image
Image
Image
Image
Image
2025@ Website maintained by Grace Technology
  • HOME
  • ABOUT US
  • SERVICES
  • PROJECTS
  • PAGE
  • CONTACT