Vitogo Parade, Lautoka +679 721 0657 Mon-Sat: 8am - 5pm
Follow us:
Autora
  • HOME
  • ABOUT US
    • ABOUT DESIGN
    • ABOUT BUILT
    • DIRECTOR
    • ASSISTANT DIRECTOR
  • OUR TEAM
    • MANAGEMENT TEAM
    • OPERATIONAL TEAM
    • OUR EVENTS
  • SERVICES
    • GRACE DESIGN
    • GRACE BUILT
  • GRACE PROJECTS
    • GRACE PLAN LAYOUT
    • GRACE DESIGN
    • GRACE BUILT & DESIGN
    • LANDSCAPING
  • CONTACT
Home | Projects | Project Single

Project Name

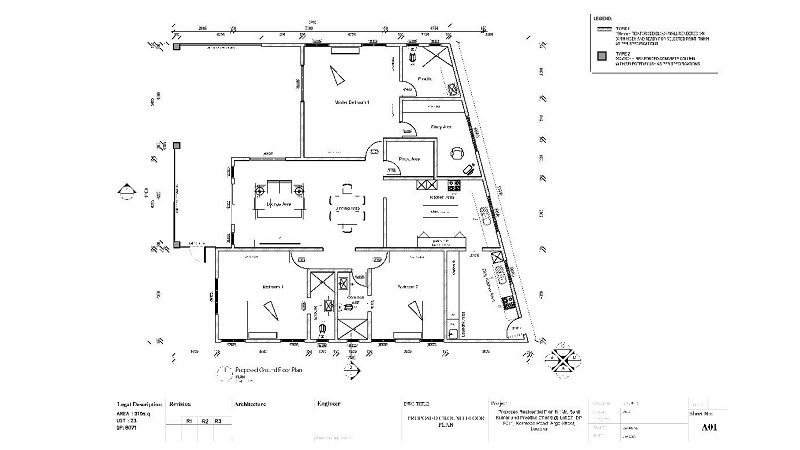
RESIDENTIAL HOUSE

  • Client Kumar Family
  • Year completed 2025
  • Project Designer GRACE DESIGN
  • Main ContractorGRACE BUILT & DESIGN
  • Call for a Budget +679 7210657

BROCHURES

Brochures.PDF
Brochures.DOC
Image
Image
Image
Image
Image
Image
Image
Image
Image
Image
Image
Image
Image
Image
PROJECT DESCRIPTION

Congrats to KUMAR FAMILY
Mordern Living:

We, like many, had a dream of building our own mordern place within Lautoka. Like many, we didn't act on the dream because we weren't sure who we could trust to make our dream come true. That all changed when we met KUNAL - we knew his dedication, commitment to quality and no-nonsense approach was exactly what we wanted in building our dream from afar. From giving honest advice on the things you don't know about building on the ON A SLOPE LANDWHERE EVERY ONE THOUGHT NOTHING CAN BE DONE, to being the perfect partner for adding customization in our home Design - KUNAL & His TEAM were incredible to work with. The quality is impeccable and the thoughtfulness he put into every detail went above even our visions of our dream house. We would recommend GRACE DESIGN / GRACE BUILT to anyone considering making the leap and we certainly look forward to the opportunity of building another home with them again in the future..From Design stage to approvals and construction the commitment shown was very appreciating...calls were answered and deadline was met..KUNALS Bangladeshi staffs and finishing foreman was also very attentive to details.Sub Contractors were amazing and follwed instruction and request that were made during construction stage...
A special thanks to :
GRACE DESIGN TEAM
GRACE BUILT CONSTRUCTION TEAM
VEINSA ELECTRICAL SERVICES
SNR JOINERY WORKS.
KIWI GLASS & ALLUMINUM

RELATED PROJECTS

Image
COMPLETED PROJECT
VIEW MORE..
Image
COMPLETED PROJECT
VIEW MORE..
Image
COMPLETED PROJECT
VIEW MORE..
Image
COMPLETED PROJECT
VIEW MORE..
Image
COMPLETED PROJECT
VIEW MORE..
Image
COMPLETED PROJECT
VIEW MORE..

Image

Grace Design & Build is your trusted partner for bringing your dream project to life in Fiji.

  • Vitogo Parade, Lautoka, Fiji
  • CALL US : (+679) 721 0657
  • gracedesigngroup70@yahoo.com

OUR PROJECTS

  • Image

    GRACE DESIGN

    Turning visions into architectural reality.
  • Image

    GRACE BUILT & DESIGN

    Building with quality, precision, and trust.

TAGS

Building Smart House Costruction Villa Residential Interior Resort Commercial

INSTAGRAM PHOTOS

Image
Image
Image
Image
Image
Image
2025@ Website maintained by Grace Technology
  • HOME
  • ABOUT US
  • SERVICES
  • PROJECTS
  • PAGE
  • CONTACT