Vitogo Parade, Lautoka +679 721 0657 Mon-Sat: 8am - 5pm
Follow us:
Autora
  • HOME
  • ABOUT US
    • ABOUT DESIGN
    • ABOUT BUILT
    • DIRECTOR
    • ASSISTANT DIRECTOR
  • OUR TEAM
    • MANAGEMENT TEAM
    • OPERATIONAL TEAM
    • OUR EVENTS
  • SERVICES
    • GRACE DESIGN
    • GRACE BUILT
  • GRACE PROJECTS
    • GRACE PLAN LAYOUT
    • GRACE DESIGN
    • GRACE BUILT & DESIGN
    • LANDSCAPING
  • CONTACT
Home | Projects | Project Single

Project Name

CHURCH COMPLEX

  • Project ASSEMBLIES OF GOD
  • Project Designer GRACE DESIGN
  • Call for a Budget +679 7210657

BROCHURES

Brochures.PDF
Brochures.DOC
Image
Image
Image
Image
Image
Image
Image
Image
Image
Image
Image
PROJECT DESCRIPTION

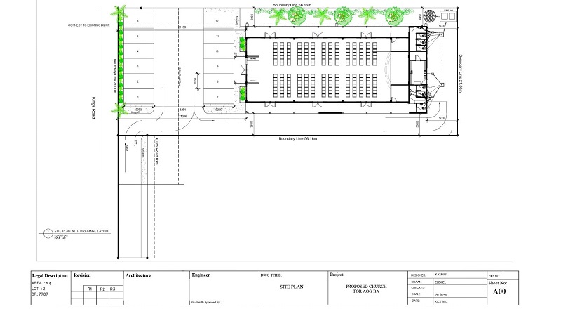
CLIENT: ASSEMBLIES OF GOD CHURCH, BA, FIJI.
OVERALL LAYOUT:
The church is designed with a simple, rectangular footprint, measuring approximately 56.16 meters by 21.00 meters. This layout provides a clear and efficient use of space.
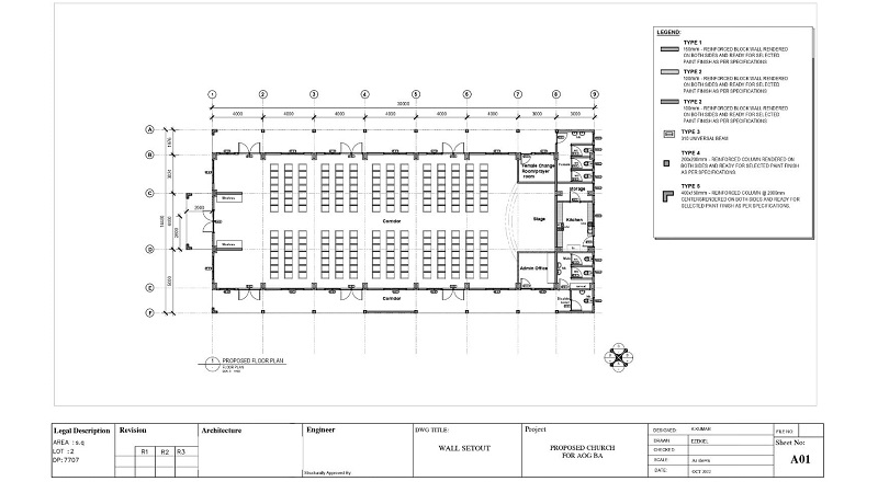
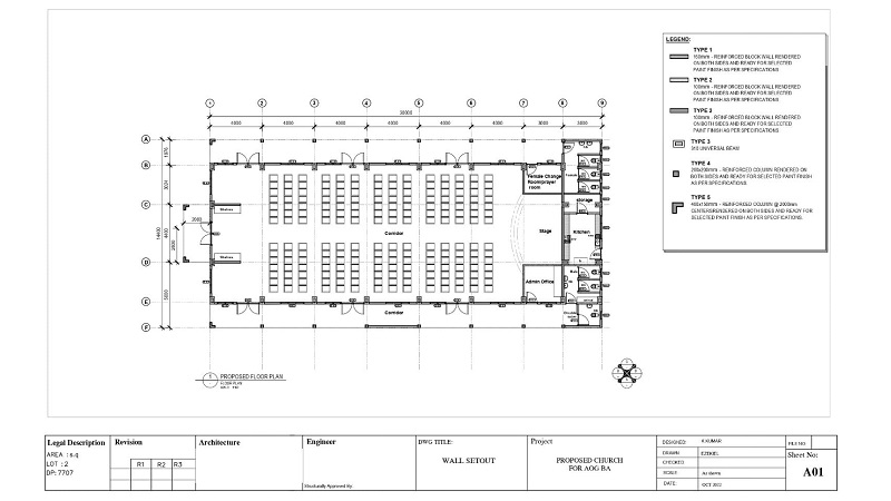
Main Worship Area:
The central space, dedicated to the congregation, is generously proportioned, allowing ample room for worshippers. The rows of pews are arranged to provide good sightlines to the stage and altar.
Side Rooms and Facilities:
The design includes several side rooms, strategically placed to offer various functions. These rooms could be used for Sunday school classes, youth groups, administrative offices, or other church activities. The layout ensures easy access to these spaces from the main worship area.
Parking: A dedicated parking area is provided on the site, ensuring convenient parking for worshippers. The number of parking spaces seems adequate for the size of the church.
Functionality and Convenience: The overall design prioritizes functionality and convenience. The clear layout and ample space make the church easy to navigate and use. The side rooms offer flexibility for various activities, and the parking area ensures easy access for worshippers.
The exterior design of the church is simple and functional.
The building has a rectangular shape with a pitched roof, which is a common design for churches.
The use of large windows on the front facade allows for ample natural light to enter the interior, creating a bright and welcoming atmosphere.
The windows are well-proportioned and placed strategically to provide views of the surrounding area.
The design of the windows complements the overall aesthetic of the building.
The parking area in front of the church seems adequate to accommodate the needs of the congregation. Overall, the exterior design of the church appears to be well-suited to its purpose. It is a simple, functional, and welcoming building. Overall, the interior design appears to be a well-thought-out and practical solution for a church building. It provides a functional and welcoming space for worship and other church activities. If you have any specific questions about the layout, dimensions, or functionality, feel free to ask! WELCOME TO GRACE DESIGN.

RELATED PROJECTS

Image
OUR BUILDING DESIGN
VIEW MORE
Image
OUR BUILDING DESIGN
VIEW MORE
Image
OUR BUILDING DESIGN
VIEW MORE
Image
OUR BUILDING DESIGN
VIEW MORE
Image
OUR BUILDING DESIGN
VIEW MORE
Image
OUR BUILDING DESIGN
VIEW MORE

Image

Grace Design & Build is your trusted partner for bringing your dream project to life in Fiji.

  • Vitogo Parade, Lautoka, Fiji
  • CALL US : (+679) 721 0657
  • gracedesigngroup70@yahoo.com

OUR PROJECTS

  • Image

    GRACE DESIGN

    Turning visions into architectural reality.
  • Image

    GRACE BUILT & DESIGN

    Building with quality, precision, and trust.

TAGS

Building Smart House Costruction Villa Residential Interior Resort Commercial

INSTAGRAM PHOTOS

Image
Image
Image
Image
Image
Image
2025@ Website maintained by Grace Technology
  • HOME
  • ABOUT US
  • SERVICES
  • PROJECTS
  • PAGE
  • CONTACT